Hiring an interior designer shouldn’t be seen as a luxury – for major renovation or new-build projects it is one of the most valuable decisions a homeowner can make. A professional interior designer does far more than select furniture or colours – they help shape the layout, technical planning and overall vision of your home from the start.

At Clair Strong Interior Design, projects are approached as a comprehensive interior design service, working alongside architects, project managers and builders to design spaces from concept through to installation. By collaborating closely with the wider project team, the interior design can be integrated into the plans from the earliest stages, ensuring the finished home functions beautifully as well as looking exceptional.
Professional Design Vision and Room Concepts
Interior designers begin by developing clear visual concepts for each room. Using digital mood boards and illustrated design layouts, we establish a cohesive design direction that guides the entire project.

These concept boards combine colour palettes, materials, furniture, lighting and finishes so clients can easily visualise how a space will look before any work begins. This early design stage ensures every element of the home works together aesthetically.
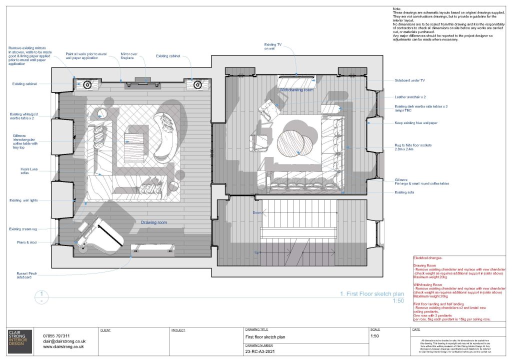
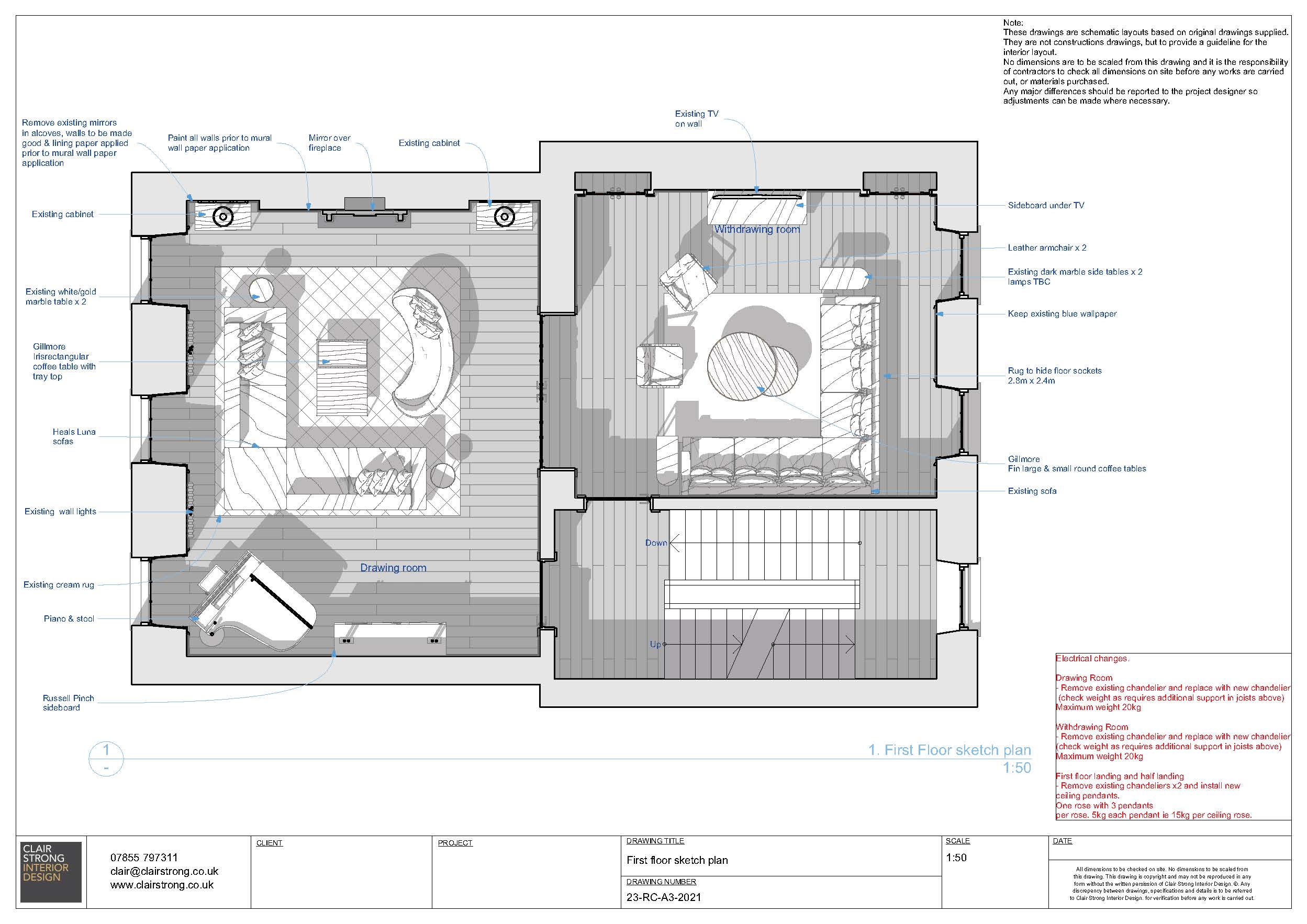
Technical Planning and Detailed Drawings
Good design must also work technically. Interior designers produce detailed CAD drawings and technical plans that allow contractors to build and install the design accurately.

These drawings often include furniture layouts, lighting plans and 3D visualisations that show exactly how the finished space will look. They also ensure that lighting, electrics, plumbing and furniture placement are carefully coordinated within the architecture of the property.
Space Planning and Layout Optimisation
One of the most valuable skills an interior designer brings is spatial planning. By analysing how rooms flow together, we can reconfigure layouts to improve functionality and comfort.

We frequently work alongside architects and builders to ensure elements such as kitchens, bathrooms, storage and lighting are planned correctly within the structure of the building.
Access to Materials, Furniture and Bespoke Design
Interiors designers also manage the sourcing of FF&E (Furniture, Fixtures and Equipment). We curate furniture, fabrics, lighting and finishes that suit the design concept while meeting practical requirements.

We produce tactile sample boards, which allow you to see and feel fabrics, wallpapers, flooring and finishes in different lighting conditions. We can also create bespoke joinery or custom furniture, using our ‘little black book’ of specialist craftspeople and manufacturers.
Procurement, Project Coordination and Installation
Large design projects involve coordinating multiple suppliers and trades. A full-service interior design, like Clair Strong Interior Design manages procurement, deliveries and installation, ensuring that products arrive on schedule and are installed correctly.

We also work closely with builders, electricians, joiners and other contractors on site, providing detailed drawing packs and specifications so that the design is implemented accurately. The process concludes with final installation and styling, arranging furniture, accessories and soft furnishings to create a polished and cohesive interior.
Creating a Home That Works Beautifully
Hiring an interior designer ensures that both the creative and technical aspects of a project are professionally managed. By working collaboratively with architects, builders and specialist craftsmen, a full-service design studio like Clair Strong Interior Design. helps ensure every detail of the project is considered from the beginning.

From spatial planning and technical drawings to sourcing furniture and managing installation, we bring the expertise that transforms a house into a carefully designed home that works beautifully for everyday living.



